
Всем привет! Кажется, мы купили своё жильё. Мы искали что-нибудь недорогое, чтобы в месяц выплачивать примерно столько же, сколько сейчас платим сейчас за рент. Просто нас уже достало выкидывание денег лендлордам, мы решили, что лучше эти же деньги вкладывать в своё жильё и жить в нём. И не бояться лишнюю дырочку просверлить в стенке, и не психовать когда афроканадец (ещё тот слон!) живущий сверху начинает танцы "Туба-Туба", во время которых потолок прогибается.
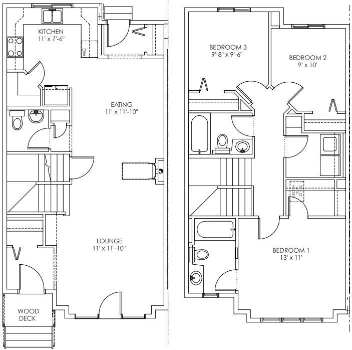
В качестве первого нашего "стартового" дома мы выбрали "дуплекс" - это два полноценных дома но с одной общей стенкой. Одна половинка наша. На рисунке сверху застройщик живописно его нарисовал. А вот это планы первого и второго этажей:

Общая площадь примерно 130 кв.м. плюс бейсмент 70 кв.м. (бейсмент придётся самим отделывать), три туалета, 1 ванная и 1 душевая. В общем - типичный канадский набор.
Дом ещё строиться, ключи нам отдадут в конце июля. А вот фотографии как наш дом выглядел примерно 3 недели назад. Наша половинка спереди:

Наш дом сзади. Бэкярд пока весь изрыт техникой:

Первый этаж. справа будет камин, слева в дальнем углу - кухня:

Это - будет лестница на второй этаж:

Это - когда-нить будет наша спальня:

Ступеньки в бейсмент:

В бейсменте начали установку котлов, фильтров и пр. хрени, назначение которых я пока не знаю:

На боковой стенке дома уже установлены счётчики:

В течение двух месяцев застройщик пообещал сдать нам готовый дом. Интересно, как они справяться за такой короткий срок...

